(最終更新日:2026年04月23日)
☆JR川越線南古谷駅徒歩3分☆エレベーター付きファミリーマンション☆オートロックでセキュリティ面も配慮☆☆南向き角部屋65.88の広々3LDK♪☆礼金不要☆ネット無料☆更新料不要*学区:南古谷小・東中☆当店掲載物件以外でも一括でご紹介・見学が可能です☆最寄り駅・物件現地待ち合わせ可
ID :2062058
※お問い合わせ時にこちらのID番号をスタッフにお伝えお願い致します。
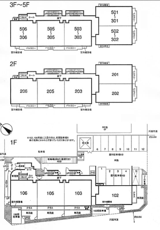
3LDK マンション 賃貸 埼玉県 川越市シー・ビー・フォート 502






































賃料・初期費用
101,000円
管理費
7,100 円
敷金
202,000 円
礼金
0 円
物件情報
間取り
3LDK
面積
65.88㎡
築年
2001年1月
物件種別
マンション
アクセス
交通
川越線 南古谷 徒歩3分
東武東上線 新河岸 徒歩28分
住所
埼玉県 川越市 並木新町7-5
0800-111-6663(無料)
海外から: +81-3-5155-4671
詳細情報
賃料
管理費
101,000 円
7,100 円
敷金
礼金
202,000 円
0 円
保証金
敷引金・償却金
- 円
- 円
間取り
3LDK
面積
65.88㎡
築年
2001年1月
階
5階 / 5階建
向き
南
物件種別
マンション
物件構造
鉄筋コンクリート造
住宅保険
要
入居可能日
ご相談
こだわり条件
2人入居可/風呂・トイレ別/シャワー有/追い焚き機能有/洗濯機置き場(室内)/オートロック/エレベータ有/バルコニー/フローリング/駐輪場/角部屋/温水洗浄便座/カウンターキッチン/独立洗面台/インターネット使用料無料/クローゼット・押入れ/シューズインクローゼット
追記事項
-
その他費用
-
備考
-
※ 掲載情報と現状が異なる場合は現状優先といたします。
所在地
住所
埼玉県 川越市 並木新町7-5
交通
川越線 南古谷 徒歩 3分
東武東上線 新河岸 徒歩 28分
備考
保証会社
加入要(保証会社名:株式会社グローバルトラストネットワークス)
保証会社利用料:初回保証料
月額総賃料の30%〜100%(最低保証料 20,000円〜)
+ 年間保証料(10,000円)もしくは月間保証料(1,000円〜)
情報提供元
株式会社グローバルトラストネットワークス 新大久保支店
取引態様:媒介
〒169-0072 東京都新宿区大久保1-15-15 AKIYAMA BLD 2階
宅地建物取引業 国土交通大臣(2)第9148号
(公社)東京都宅地建物取引業協会 会員
(公財)日本賃貸住宅管理協会 会員
(公社)首都圏不動産公正取引協議会 団体会員
最終更新日
2026/04/23
次回更新日
2026/04/30
契約期間
-
0800-111-6663(無料)
海外から: +81-3-5155-4671