(最終更新日:2026年04月20日)
■鍵交換代貸主負担キャンペーン実施中 ■連帯保証人不要 ■フリーレント1ヶ月 ■敷金礼金0円
ID :2065561
※お問い合わせ時にこちらのID番号をスタッフにお伝えお願い致します。
1K マンション 賃貸 兵庫県 尼崎市アーデン塚口 0401


賃料・初期費用
75,000円
管理費
15,000 円
敷金
- 円
礼金
- 円
物件情報
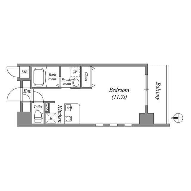
間取り
1K
面積
28.33㎡
築年
2006年2月
物件種別
マンション
アクセス
交通
福知山線 塚口 徒歩4分
住所
兵庫県 尼崎市 南塚口町1丁目7番25号
0800-111-6663(無料)
海外から: +81-3-5155-4671
詳細情報
賃料
管理費
75,000 円
15,000 円
敷金
礼金
- 円
- 円
保証金
敷引金・償却金
- 円
- 円
間取り
1K
面積
28.33㎡
築年
2006年2月
階
4階 / 10階建
向き
南
物件種別
マンション
物件構造
鉄筋コンクリート造
住宅保険
要
入居可能日
2026-6
こだわり条件
風呂・トイレ別/シャワー有/IHコンロ/システムキッチン/洗髪洗面化粧台有/洗濯機置き場(室内)/CS/BS/オートロック/エレベータ有/バルコニー/フローリング/宅配ボックス/温水洗浄便座/オール電化/浴室乾燥機/独立洗面台/防犯カメラ/クローゼット・押入れ/シューズインクローゼット/エアコン有
追記事項
-
その他費用
-
備考
■解約予告2ヶ月前(日割) ※フリーレント適用時、1年未満の解約で相当額の短期違約設定有 ※1年未満の解約で、共込1ヶ月分の短期違約設定有 ※法人契約時は、共込1ヶ月分の礼金必須(短期違約設定無) ■退居時エアコンクリーニング代(1基あたり):12,000円(税別) ■保証会社エポス30%→ニッポンインシュア100% ※その他詳細は補足資料等【特記事項一覧(PM)】
※ 掲載情報と現状が異なる場合は現状優先といたします。
住所
兵庫県 尼崎市 南塚口町1丁目7番25号
交通
福知山線 塚口 徒歩 4分
備考
保証会社
加入要(保証会社名:株式会社グローバルトラストネットワークス)
保証会社利用料:初回保証料
月額総賃料の30%〜100%(最低保証料 20,000円〜)
+ 年間保証料(10,000円)もしくは月間保証料(1,000円〜)
情報提供元
株式会社グローバルトラストネットワークス 新大久保支店
取引態様:媒介
〒169-0072 東京都新宿区大久保1-15-15 AKIYAMA BLD 2階
宅地建物取引業 国土交通大臣(2)第9148号
(公社)東京都宅地建物取引業協会 会員
(公財)日本賃貸住宅管理協会 会員
(公社)首都圏不動産公正取引協議会 団体会員
最終更新日
2026/04/20
次回更新日
2026/04/27
契約期間
-
0800-111-6663(無料)
海外から: +81-3-5155-4671
