(最終更新日:2026年04月26日)
2026/06/30解約予定
ID :2068460
※お問い合わせ時にこちらのID番号をスタッフにお伝えお願い致します。
1K マンション 賃貸 大阪府 大阪市浪速区セオリー夕陽丘DOOR 0513
































賃料・初期費用
64,010円
管理費
5,490 円
敷金
- 円
礼金
34,750 円
物件情報
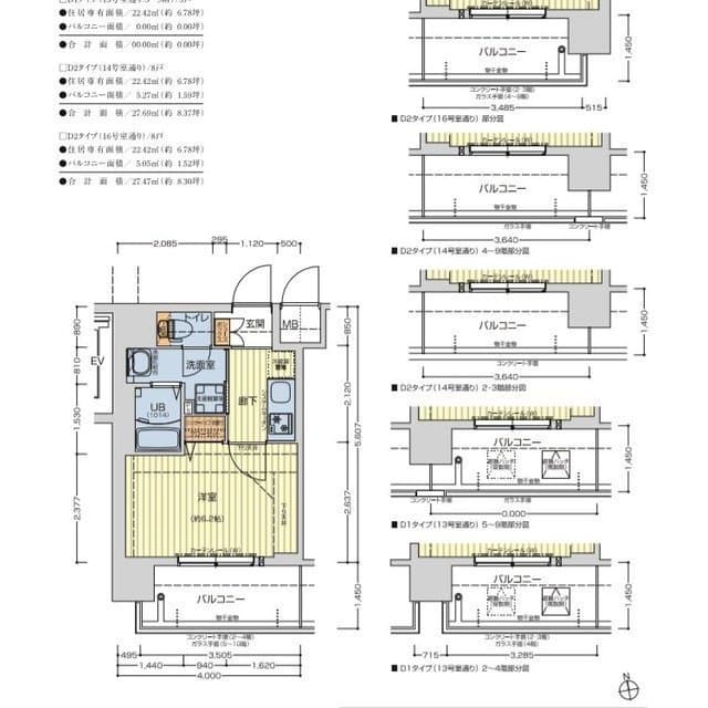
間取り
1K
面積
22.42㎡
築年
2019年12月
物件種別
マンション
アクセス
交通
御堂筋線 動物園前 徒歩6分
谷町線 四天王寺前夕陽ヶ丘 徒歩11分
住所
大阪府 大阪市浪速区 下寺3丁目7番19
0800-111-6663(無料)
海外から: +81-3-5155-4671
詳細情報
賃料
管理費
64,010 円
5,490 円
敷金
礼金
- 円
34,750 円
保証金
敷引金・償却金
- 円
- 円
間取り
1K
面積
22.42㎡
築年
2019年12月
階
5階 / 10階建
向き
南
物件種別
マンション
物件構造
鉄筋コンクリート造
住宅保険
要
入居可能日
2026-7
こだわり条件
ペット相談/都市ガス/シャワー有/コンロ2口以上/洗髪洗面化粧台有/洗濯機置き場(室内)/CS/BS/オートロック/エレベータ有/バルコニー/フローリング/TVモニター付きインターホン/温水洗浄便座/独立洗面台/防犯カメラ/クローゼット・押入れ/シューズインクローゼット/エアコン有
追記事項
-
その他費用
-
備考
■解約予告2ヶ月前(退去時日割)■短期違約金:1年未満解約は「家賃+共益費」の1ヶ月分 ※礼金1か月分未満の場合は2カ月分要 ■保証会社sumai保証 ほっと保証(初回保証料:100%※最低保証料4万円、月額保証料:税別800円、年間保証料2万円)■賃貸でんき契約必須(0120-772-003)
※ 掲載情報と現状が異なる場合は現状優先といたします。
所在地
住所
大阪府 大阪市浪速区 下寺3丁目7番19
交通
御堂筋線 動物園前 徒歩 6分
谷町線 四天王寺前夕陽ヶ丘 徒歩 11分
備考
保証会社
加入要(保証会社名:株式会社グローバルトラストネットワークス)
保証会社利用料:初回保証料
月額総賃料の30%〜100%(最低保証料 20,000円〜)
+ 年間保証料(10,000円)もしくは月間保証料(1,000円〜)
情報提供元
株式会社グローバルトラストネットワークス 新大久保支店
取引態様:媒介
〒169-0072 東京都新宿区大久保1-15-15 AKIYAMA BLD 2階
宅地建物取引業 国土交通大臣(2)第9148号
(公社)東京都宅地建物取引業協会 会員
(公財)日本賃貸住宅管理協会 会員
(公社)首都圏不動産公正取引協議会 団体会員
最終更新日
2026/04/23
次回更新日
2026/04/30
契約期間
-
0800-111-6663(無料)
海外から: +81-3-5155-4671


