(마지막 업데이트: 2026年05月07日)
ID :995201
※ 문의시 제품의 ID번호를 직원에게 알려 주시기 바랍니다.
1R 맨션 임대 주택 동경도 스기나미쿠スカイコート荻窪第5 204










































임대료 · 초기 비용
77,000엔
관리비용
0 엔
시키킹
77,000 엔
레이킹
0 엔
물건명
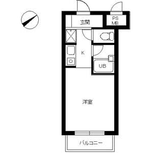
방구조
1R
면적
18.28㎡
건축 연월일
1998년5월
건물종별
맨션
접근
노선
마루노우치 선 오기쿠보 도보8분
주소로
동경도 스기나미쿠 東京都杉並区上荻2丁目9-19
0800-111-6663(무료)
해외에서: +81-3-5155-4671
상세정보
임대료
관리비용
77,000 엔
0 엔
시키킹
레이킹
77,000 엔
0 엔
보증금
상각금
0 엔
- 엔
방구조
1R
면적
18.28㎡
건축 연월일
1998년5월
층
2층 / 4층 건물
방향
동
건물종별
맨션
구조
철근 콘크리트조
주택보험
필요함
입주 가능한 날
2023-8-중순
세부 조건
도시가스/욕실・화장실 분리/세탁기 놓는 곳(실내)/오토락/발코니/플로어링/자전거 주차장 잇음/에어컨
추기
-
기타 비용
24時間安心サポート(入居時):16500
그 외
室内設備はCATV・BS・システムキッチンなど充実した設備を備え付けています。住人以外が住居エリアに侵入しにくく安全性が上がるオートロック機能を備えています。24時間ゴミ出しできる物件なら買い物に行くついでにゴミを捨てることも、寝る前に捨てることもできます。駐輪場付きのマンションです。マンションタイプのお部屋です。こちらは単身者限定とさせていただいておりますのでご了承ください。インターネットが繋が
※ 게재되어있는 정보와 현황이 다른 경우에는 현상을 우선시 합니다.
위치
주소로
동경도 스기나미쿠 東京都杉並区上荻2丁目9-19
노선
마루노우치 선 오기쿠보 도보 8분
그 외
보증회사
가입 필수(보증회사 :주식회사 글로벌 트러스트 네트웍스)
보증회사 이용료:첫 보증료 월세의 30%~100%(최저 보증료 20,000円~)
+ 연간보증료(10,000円)혹은 매월 보증료(1,000円~)
정보 출처
주식회사 글로벌 트러스트 네트웍스
신오쿠보점
〒169-0072
도쿄도 신주쿠구 오쿠보 1-15-15 AKIYAMA BLD2층
Member of THE TOKYO REAL ESTATE PUBLIC INTEREST INCORPORATED ASSOCIATION
Member of JAPAN PROPERTY MANAGEMENT ASSOCIATION
Group member of REAL ESTATE FAIR TRADE COUNCIL
마지막 업데이트
2026/05/03
다음 업데이트
2026/05/11
계약기간
-
0800-111-6663(무료)
해외에서: +81-3-5155-4671