(最終更新日:2026年05月07日)
ID :995201
※お問い合わせ時にこちらのID番号をスタッフにお伝えお願い致します。
1R マンション 賃貸 東京都 杉並区スカイコート荻窪第5 204










































賃料・初期費用
77,000円
管理費
0 円
敷金
77,000 円
礼金
0 円
物件情報
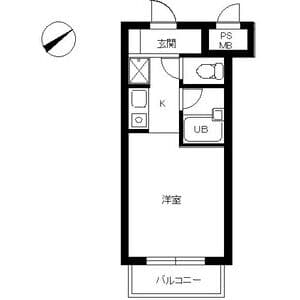
間取り
1R
面積
18.28㎡
築年
1998年5月
物件種別
マンション
アクセス
交通
丸ノ内線 荻窪 徒歩8分
住所
東京都 杉並区 東京都杉並区上荻2丁目9-19
0800-111-6663(無料)
海外から: +81-3-5155-4671
詳細情報
賃料
管理費
77,000 円
0 円
敷金
礼金
77,000 円
0 円
保証金
敷引金・償却金
0 円
- 円
間取り
1R
面積
18.28㎡
築年
1998年5月
階
2階 / 4階建
向き
東
物件種別
マンション
物件構造
鉄筋コンクリート造
住宅保険
要
入居可能日
2023-8-中旬
こだわり条件
都市ガス/風呂・トイレ別/洗濯機置き場(室内)/オートロック/バルコニー/フローリング/駐輪場/エアコン有
追記事項
-
その他費用
24時間安心サポート(入居時):16500
備考
室内設備はCATV・BS・システムキッチンなど充実した設備を備え付けています。住人以外が住居エリアに侵入しにくく安全性が上がるオートロック機能を備えています。24時間ゴミ出しできる物件なら買い物に行くついでにゴミを捨てることも、寝る前に捨てることもできます。駐輪場付きのマンションです。マンションタイプのお部屋です。こちらは単身者限定とさせていただいておりますのでご了承ください。インターネットが繋が
※ 掲載情報と現状が異なる場合は現状優先といたします。
所在地
住所
東京都 杉並区 東京都杉並区上荻2丁目9-19
交通
丸ノ内線 荻窪 徒歩 8分
備考
保証会社
加入要(保証会社名:株式会社グローバルトラストネットワークス)
保証会社利用料:初回保証料
月額総賃料の30%〜100%(最低保証料 20,000円〜)
+ 年間保証料(10,000円)もしくは月間保証料(1,000円〜)
情報提供元
株式会社グローバルトラストネットワークス 新大久保支店
取引態様:媒介
〒169-0072 東京都新宿区大久保1-15-15 AKIYAMA BLD 2階
宅地建物取引業 国土交通大臣(2)第9148号
(公社)東京都宅地建物取引業協会 会員
(公財)日本賃貸住宅管理協会 会員
(公社)首都圏不動産公正取引協議会 団体会員
最終更新日
2026/05/03
次回更新日
2026/05/11
契約期間
-
0800-111-6663(無料)
海外から: +81-3-5155-4671