(最終更新日:2025年10月19日)
☆室内リノベーション☆ ユニットバス交換 / キッチン周りリニューアル 床は既存床よりも明るい雰囲気

ID :1793479

※お問い合わせ時にこちらのID番号をスタッフにお伝えお願い致します。

1LDK マンション 賃貸 東京都 港区ベルジューレ高輪 0103

Property
Property
Property
Property
Property
Property
Property
Property
Property
Property
Property
Property
Property
Property
Property
Property
Property
Property
Property
Property
Property
Property
Property
Property
Property
Property
Property
Property
Property
Property
Property
Property
Property
Property
Property
Property
Property
Property
Property
Property

賃料・初期費用

160,000

管理費
15,000
敷金
0
礼金
160,000

物件情報

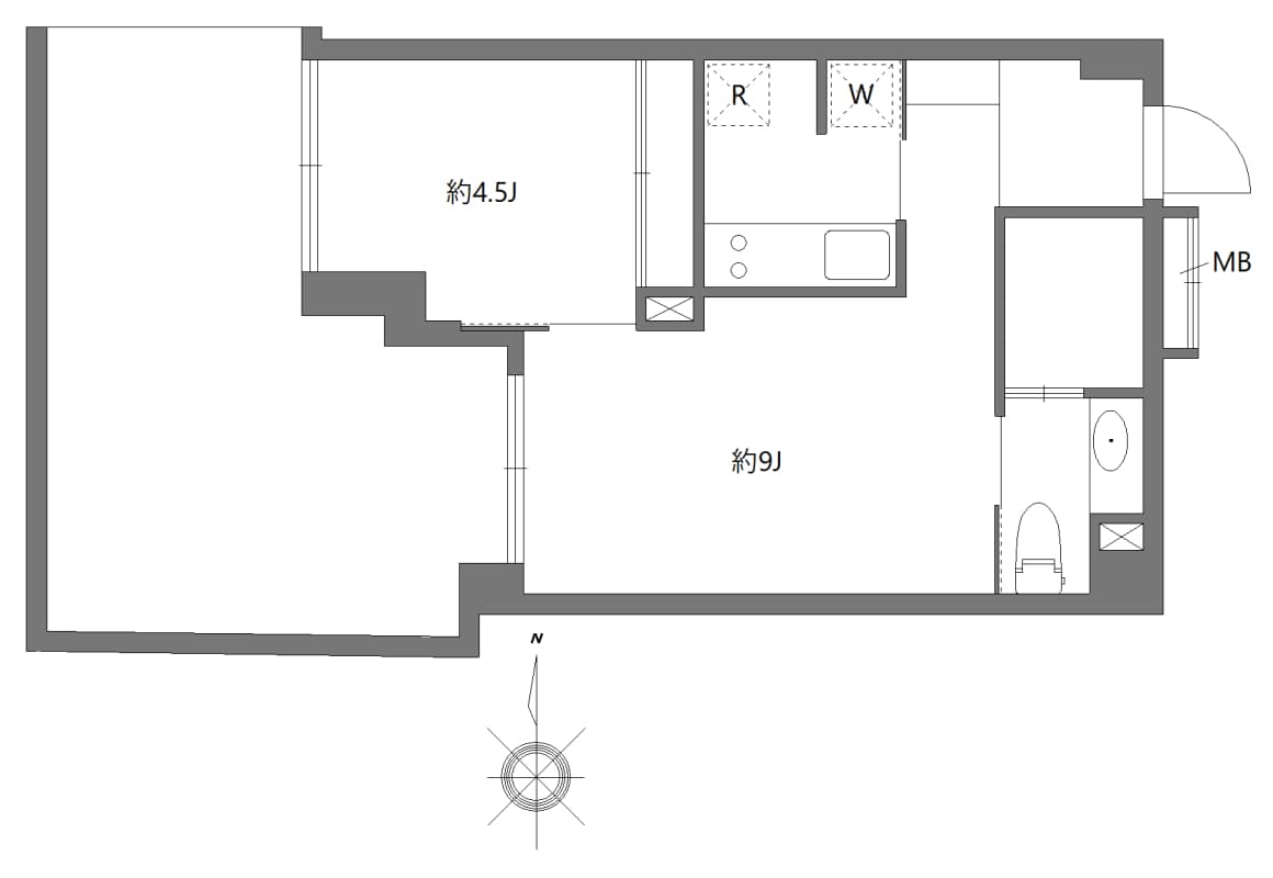
間取り
1LDK
面積
36.35㎡
築年
2005年3月
物件種別
マンション

アクセス

交通

都営浅草線 高輪台 徒歩 5分

山手線 品川 徒歩 13分

住所
東京都 港区 高輪3丁目14-41
0800-111-6663(無料

海外から: +81-3-5155-4671

詳細情報

賃料 管理費
160,000 円 15,000 円
敷金 礼金
0 円 160,000 円
保証金 敷引金・償却金
- 円 - 円
間取り
1LDK
面積
36.35㎡
築年
2005年3月
- 階 / 5階建
向き
西
物件種別
マンション
物件構造
鉄筋コンクリート造
住宅保険
入居可能日
即入居可
こだわり条件
ペット可/都市ガス/風呂・トイレ別/コンロ2口以上/追い焚き機能有/洗濯機置き場(室内)/オートロック/エレベータ有/フローリング/駐輪場/角部屋/温水洗浄便座/浴室乾燥機/独立洗面台/クローゼット・押入れ/エアコン有
追記事項
-
備考
■短期解約違約金:1年未満1カ月 ■解約予告:2カ月前 ■プレミアデスク代の中に登録料4400円(税込)を含みます。 ■大手法人契約時【+礼1】で諸条件ご相談可 ■PET飼育時 敷金1ヶ月プラス ■リノベーション予定 ※電力会社の指定有り。 イーネットワークシステムズ 03-6809-4061 

※ 掲載情報と現状が異なる場合は現状優先といたします。

所在地

住所
東京都 港区 高輪3丁目14-41
交通
都営浅草線 高輪台 徒歩 5分 山手線 品川 徒歩 13分

備考

保証会社
加入要(保証会社名:株式会社グローバルトラストネットワークス) 保証会社利用料:初回保証料 月額総賃料の30%〜100%(最低保証料 20,000円〜) + 年間保証料(10,000円)もしくは月間保証料(1,000円〜)
情報提供元
株式会社グローバルトラストネットワークス 新大久保支店 取引態様:媒介 〒169-0072 東京都新宿区大久保1-15-15 AKIYAMA BLD 2階 宅地建物取引業 国土交通大臣(2)第9148号 (公社)東京都宅地建物取引業協会 会員 (公財)日本賃貸住宅管理協会 会員 (公社)首都圏不動産公正取引協議会 団体会員
(最終更新日:{date})
2025/10/18
次回更新日
2025/10/26
契約期間
-
お問い合わせ

多言語での応対可能!!

お部屋探しを 依頼してみませんか?