(Cập nhật lần cuối: 2026年04月28日)
ID :1912052
※Vui lòng cho nhân viên biết số ID này khi được yêu cầu.
1LDK chung cư Tòa nhà cho thuê Tokyo shibuya-kuグランパセオ代々木上原 0101














































Giá thuê/chi phí ban đầu
231,000Yen
Phí quản lý
20,000 Yen
Tiền đặt cọc
0 Yen
Tiền lễ
0 Yen
Thông tin tài sản
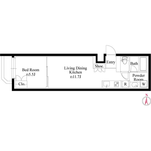
Không gian
1LDK
Diện tích
38.9㎡
Năm xây dựng
2025năm8Cho đến
Loại căn hộ
chung cư
Thông tin vị trí
Giao thông
Odakyu Odawara Line Yoyogi-Uehara đi bộ9phút
Odakyu Odawara Line Higashi-Kitazawa đi bộ3phút
Địa chỉ
Tokyo shibuya-ku 大山町8-5
0800-111-6663(Miễn phí)
Từ nước ngoài: +81-3-5155-4671
Thông tin cụ thể
Tiền thuê
Phí quản lý
231,000 Yen
20,000 Yen
Tiền đặt cọc
Tiền lễ
0 Yen
0 Yen
Tiền bảo lãnh
Tiền cọc không hoàn lại
0 Yen
- Yen
Không gian
1LDK
Diện tích
38.9㎡
Năm xây dựng
2025năm8Cho đến
Tầng thứ
- Tầng thứ / 3Tầng
Hướng nhà
tây
Loại căn hộ
chung cư
Kết cấu
lõi thép chống ồn
Bảo hiểm nhà ở
Cần
Có thể chuyển vào luôn
Có thể chuyển vào luôn
Điều kiện
Có thể 2 người ở/Gas thành phố/Phòng tắm và toilet riêng biệt/Bếp 2 chỗ trở lên/Chức năng hâm nóng nước/Chỗ để máy giặt(Trong nhà)/Khóa tự động Auto lock/Thang máy/Sàn ván gỗ/Thùng nhận chuyển phát/Có bãi đỗ xe đạp/Phòng góc/Chuông cửa màn hình/Có bệt rửa tự động/Có máy sấy khô trong phòng tắm/Có bồn rửa mặt riêng/Sử dụng Internet miễn phí/Tủ chứa đồ
Bản ghi nhớ
-
Các khoản khác
-
Tham khảo
-
※ Trong trường hợp thông tin đã đăng và tình trạng thực tế khác nhau, chúng tôi sẽ ưu tiên tình trạng thực tế
vị trí
Địa chỉ
Tokyo shibuya-ku 大山町8-5
Giao thông
Odakyu Odawara Line Yoyogi-Uehara đi bộ 9phút
Odakyu Odawara Line Higashi-Kitazawa đi bộ 3phút
Tham khảo
Công ty bảo lãnh
Bắt buộc tham gia(Công ty bảo lãnh:Công ty bảo lãnh Global Trust Networks)
Phí sử dụng công ty bảo lãnh:Phí bảo lãnh lần đầu Bằng 30%~100% tổng tiền nhà(Phí bảo lãnh thấp nhất 20,000 yên~)
+ Phí bảo lãnh hằng năm(10,000 yên)hoặc phí bảo lãnh theo tháng(1,000yên~)
Nguồn cung cấp thông tin
Global Trust Networks Co.,Ltd.
Chi nhánh Shin-Okubo
〒 169 - 0072
Tầng 2 AKIYAMA BLD 1-15-15, Okubo, Shinjuku-ku, Tokyo
Member of THE TOKYO REAL ESTATE PUBLIC INTEREST INCORPORATED ASSOCIATION
Member of JAPAN PROPERTY MANAGEMENT ASSOCIATION
Group member of REAL ESTATE FAIR TRADE COUNCIL
Cập nhật lần cuối
2026/04/25
Ngày cập nhật tiếp theo
2026/05/04
Thời hạn hợp đồng
-
0800-111-6663(Miễn phí)
Từ nước ngoài: +81-3-5155-4671


