(Cập nhật lần cuối: 2026年04月14日)
ID :2051587
※Vui lòng cho nhân viên biết số ID này khi được yêu cầu.
1K chung cư Tòa nhà cho thuê Kanagawa Kawasakishi Saiwai-kuメインステージ川崎クロシアII 1104
























Giá thuê/chi phí ban đầu
90,000Yen
Phí quản lý
15,000 Yen
Tiền đặt cọc
0 Yen
Tiền lễ
90,000 Yen
Thông tin tài sản
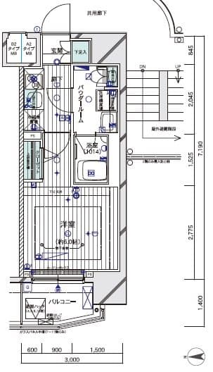
Không gian
1K
Diện tích
21.57㎡
Năm xây dựng
2015năm10Cho đến
Loại căn hộ
chung cư
Thông tin vị trí
Giao thông
Tokaido Line Kawasaki đi bộ13phút
Keihin-Tohoku Negishi Line Kawasaki đi bộ13phút
Địa chỉ
Kanagawa Kawasakishi Saiwai-ku 南幸町1丁目45-9
0800-111-6663(Miễn phí)
Từ nước ngoài: +81-3-5155-4671
Thông tin cụ thể
Tiền thuê
Phí quản lý
90,000 Yen
15,000 Yen
Tiền đặt cọc
Tiền lễ
0 Yen
90,000 Yen
Tiền bảo lãnh
Tiền cọc không hoàn lại
0 Yen
- Yen
Không gian
1K
Diện tích
21.57㎡
Năm xây dựng
2015năm10Cho đến
Tầng thứ
11Tầng thứ / 12Tầng
Hướng nhà
tây
Loại căn hộ
chung cư
Kết cấu
lõi thép chống ồn
Bảo hiểm nhà ở
Cần
Có thể chuyển vào luôn
Tư vấn
Điều kiện
Thương lượng nuôi thú cưng/Gas thành phố/Phòng tắm và toilet riêng biệt/Bếp 2 chỗ trở lên/Chỗ để máy giặt(Trong nhà)/Khóa tự động Auto lock/Thang máy/Ban công/Sàn ván gỗ/Thùng nhận chuyển phát/Có bãi đỗ xe đạp/Có chỗ để xe máy/Có Internet(Cáp quang)/Phòng góc/Chuông cửa màn hình/Có bệt rửa tự động/Có máy sấy khô trong phòng tắm/Có thể vứt rác 24 giờ/Có bồn rửa mặt riêng/Camera chống trộm/Tủ chứa đồ/Tủ để giày/Có điều hòa
Bản ghi nhớ
-
Các khoản khác
ハウスクリーニング費用(退去時請求):49500
退去時鍵交換費用(契約時請求):29700
AMLクラブサポート費用(契約時請求):16500
Tham khảo
-
※ Trong trường hợp thông tin đã đăng và tình trạng thực tế khác nhau, chúng tôi sẽ ưu tiên tình trạng thực tế
vị trí
Địa chỉ
Kanagawa Kawasakishi Saiwai-ku 南幸町1丁目45-9
Giao thông
Tokaido Line Kawasaki đi bộ 13phút
Keihin-Tohoku Negishi Line Kawasaki đi bộ 13phút
Tham khảo
Công ty bảo lãnh
Bắt buộc tham gia(Công ty bảo lãnh:Công ty bảo lãnh Global Trust Networks)
Phí sử dụng công ty bảo lãnh:Phí bảo lãnh lần đầu Bằng 30%~100% tổng tiền nhà(Phí bảo lãnh thấp nhất 20,000 yên~)
+ Phí bảo lãnh hằng năm(10,000 yên)hoặc phí bảo lãnh theo tháng(1,000yên~)
Nguồn cung cấp thông tin
Global Trust Networks Co.,Ltd.
Chi nhánh Shin-Okubo
〒 169 - 0072
Tầng 2 AKIYAMA BLD 1-15-15, Okubo, Shinjuku-ku, Tokyo
Member of THE TOKYO REAL ESTATE PUBLIC INTEREST INCORPORATED ASSOCIATION
Member of JAPAN PROPERTY MANAGEMENT ASSOCIATION
Group member of REAL ESTATE FAIR TRADE COUNCIL
Cập nhật lần cuối
2026/04/13
Ngày cập nhật tiếp theo
2026/04/20
Thời hạn hợp đồng
-
0800-111-6663(Miễn phí)
Từ nước ngoài: +81-3-5155-4671



