(Cập nhật lần cuối: 2026年04月16日)
☆駅徒歩1分!☆日当たり良好! ☆オートロック付きマンション!☆
ID :2059585
※Vui lòng cho nhân viên biết số ID này khi được yêu cầu.
1K chung cư Tòa nhà cho thuê Chiba Funabashishiジュモー京成船橋 404






























Giá thuê/chi phí ban đầu
80,000Yen
Phí quản lý
12,000 Yen
Tiền đặt cọc
80,000 Yen
Tiền lễ
160,000 Yen
Thông tin tài sản
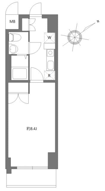
Không gian
1K
Diện tích
25.66㎡
Năm xây dựng
2014năm2Cho đến
Loại căn hộ
chung cư
Thông tin vị trí
Giao thông
Sobu Line Funabashi đi bộ5phút
Keisei Main Line Keisei Funabashi đi bộ1phút
Địa chỉ
Chiba Funabashishi 本町1丁目11-29
0800-111-6663(Miễn phí)
Từ nước ngoài: +81-3-5155-4671
Thông tin cụ thể
Tiền thuê
Phí quản lý
80,000 Yen
12,000 Yen
Tiền đặt cọc
Tiền lễ
80,000 Yen
160,000 Yen
Tiền bảo lãnh
Tiền cọc không hoàn lại
0 Yen
- Yen
Không gian
1K
Diện tích
25.66㎡
Năm xây dựng
2014năm2Cho đến
Tầng thứ
4Tầng thứ / 10Tầng
Hướng nhà
miền đông nam
Loại căn hộ
chung cư
Kết cấu
lõi thép chống ồn
Bảo hiểm nhà ở
Cần
Có thể chuyển vào luôn
Tư vấn
Điều kiện
Quyền cho thuê có hạn định/Gas thành phố/Phòng tắm và toilet riêng biệt/Vòi hoa sen/Bếp IH/Chỗ để máy giặt(Trong nhà)/Khóa tự động Auto lock/Thang máy/Ban công/Sàn ván gỗ/Thùng nhận chuyển phát/Có bãi đỗ xe đạp/Chuông cửa màn hình/Có bệt rửa tự động/Có bồn rửa mặt riêng/Camera chống trộm/Tủ chứa đồ/Tủ để giày/Có điều hòa
Bản ghi nhớ
-
Các khoản khác
プレミアデスク(税込/2年):22000
Tham khảo
■短期解約違約金:1年未満2カ月 ■解約予告:2カ月前 ■プレミアデスク代の中に登録料6600円(税込)を含みます。 ■本物件は電子契約となります。 ■再契約手数料:新賃料の1.5ヶ月 ※本物件は定期借家契約です。(大手法人でも定借必須) 再契約は貸主借主の合意に限り再契約相談可能とする。 再契約は保証するものではありません。 ※写真は参考となりますのでご注意ください。
※ Trong trường hợp thông tin đã đăng và tình trạng thực tế khác nhau, chúng tôi sẽ ưu tiên tình trạng thực tế
vị trí
Địa chỉ
Chiba Funabashishi 本町1丁目11-29
Giao thông
Sobu Line Funabashi đi bộ 5phút
Keisei Main Line Keisei Funabashi đi bộ 1phút
Tham khảo
Công ty bảo lãnh
Bắt buộc tham gia(Công ty bảo lãnh:Công ty bảo lãnh Global Trust Networks)
Phí sử dụng công ty bảo lãnh:Phí bảo lãnh lần đầu Bằng 30%~100% tổng tiền nhà(Phí bảo lãnh thấp nhất 20,000 yên~)
+ Phí bảo lãnh hằng năm(10,000 yên)hoặc phí bảo lãnh theo tháng(1,000yên~)
Nguồn cung cấp thông tin
Global Trust Networks Co.,Ltd.
Chi nhánh Shin-Okubo
〒 169 - 0072
Tầng 2 AKIYAMA BLD 1-15-15, Okubo, Shinjuku-ku, Tokyo
Member of THE TOKYO REAL ESTATE PUBLIC INTEREST INCORPORATED ASSOCIATION
Member of JAPAN PROPERTY MANAGEMENT ASSOCIATION
Group member of REAL ESTATE FAIR TRADE COUNCIL
Cập nhật lần cuối
2026/04/14
Ngày cập nhật tiếp theo
2026/04/28
Thời hạn hợp đồng
Hợp đồng thuê có thời hạn 24 tháng
0800-111-6663(Miễn phí)
Từ nước ngoài: +81-3-5155-4671





